|
|
产品中心 PRODUCTS CENTER网站首页 >> 公司产品
产品名称:LH型电动葫芦双梁桥式起重机
产品编号:145631-614
更新时间:2012.03.06
浏览次数:
|
|
产品详细介绍: |
|

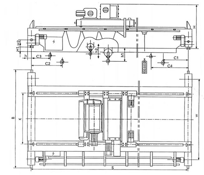
【产品简介】 LH型3.2~32/10t葫芦双梁桥式起重机是按照标准JBT3695-94设计制造的,其结构紧凑、轻巧,性能稳定可靠,建筑高度低。配用AS、HC或CD等形式的电动葫芦,运行机构采用“三台一”驱动装置,电缆馈电,主梁与端梁采用可拆式高强度螺栓连接,便于运输安装。 本系列产品起重范围适宜在32t以下,操纵方式有地面有线按钮盒、无线遥控、司机室控制。订货时需注明起重量、跨度、工作级别、起升高度、起升速度、控制形式、司机室开门方向、电源和轨道面宽等参数。 |
| |
| 起重机 |
t |
5 |
10 |
16/5 |
20/5 |
| 跨度 |
m |
7.5 |
10.5 |
13.5 |
16.5 |
19.5 |
22.5 |
7.5 |
10.5 |
13.5 |
16.5 |
19.5 |
22.5 |
7.5 |
10.5 |
13.5 |
16.5 |
19.5 |
22.5 |
7.5 |
10.5 |
13.5 |
16.5 |
19.5 |
22.5 |
| 最大轮压 |
KN |
53 |
54 |
57 |
61 |
68 |
76 |
83 |
84 |
87 |
92 |
99 |
107 |
116 |
119 |
123 |
127 |
165 |
141 |
145 |
147 |
152 |
157 |
167 |
176 |
| 总量 |
t |
6.4 |
6.8 |
7.8 |
9.6 |
12.4 |
16.4 |
7.6 |
8.2 |
9.2 |
11.2 |
14.2 |
17.2 |
9.3 |
10.5 |
11.9 |
14.5 |
16.3 |
18.8 |
10.7 |
11.8 |
13.4 |
15.6 |
19.2 |
23.0 |
| 操纵形式 |
|
地面/司机室 |
地面/司机室 |
地面/司机室 |
地面/司机室 |
| 葫芦形式 |
CD1;HCAS |
CD1;HCAS |
HC;AS |
HC;AS |
| 大车速度 |
米/分 |
30/60 |
30/60 |
30/60 |
30/60 |
| 大车轨道 |
38kg/m |
38kg/m |
43kg/m |
43kg/m50kg/m |
| 起升高度 |
m |
10/12 |
10/12 |
10/12 |
10/12 |
| 起升速度 |
米/分 |
8 |
7 |
7.2/8 |
5.6/8 |
| 小车速度 |
米/分 |
20 |
20 |
20 |
20 |
| 电源 |
三相交流 380V 50Hz |
|
基
本
尺
寸 |
K |
mm |
1250;1400 |
1400;2240 |
1400;2240 |
2240;2800 |
| W |
2650;2800 |
2900;3740 |
3000;3840 |
3840;4400 |
| B |
3150;3300 |
3550;4400 |
3750;4600 |
4600;5200 |
| b |
141 |
152 |
168 |
188 |
| H |
1225 |
1460 |
1582 |
1582 |
| H1 |
131 |
281 |
339 |
389 |
439 |
539 |
163 |
289 |
439 |
539 |
518 |
618 |
134 |
284 |
434 |
518 |
618 |
670 |
184 |
334 |
534 |
468 |
618 |
720 |
| H2 |
150 |
200 |
250 |
250 |
| h1 |
200 |
250 |
550 |
600 |
| h2 |
|
|
400 |
400 |
| C1 |
1050 |
1050 |
1500 |
1550 |
| C2 |
1050 |
1050 |
1500 |
1550 |
| C3 |
|
|
900 |
900 |
| C4 |
|
|
2150 |
2250 | | |
相关产品:
相关新闻:
|